お問い合わせ番号: PGS-I-BK-2505
★【仲介手数料無料】対象物件★防犯カメラ、モニター付インターフォン、宅配ボックス、オートロック、エレベーター、エアコン、室内洗濯機置き場、詳細は株式会社ペガサスへ【TEL03-5645-5358】お問い合わせください★ご来店、現地待ち合わせ、オンライン内見ご選択可能♪ネットに掲載されている他社様のお部屋もまとめてご紹介可能です!
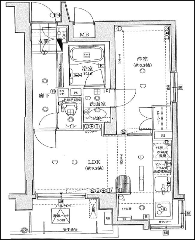
| 間取り | 間取り詳細 | 面積 | 賃料 | 管理費/共益費 | 敷金(保証金) | 礼金 | 採光向き |
|---|---|---|---|---|---|---|---|
| 1LDK | - | 37.31㎡ | 成約済 | 成約済 | 成約済 | 成約済 | - |
物件情報は代表的なお部屋を掲載しております。
建物内の別の間取りでも空室がある場合がございます。
ご指名物件の空室待ちなども受付けておりますので、お電話かメールにてスタッフまでお申付下さい。
※写真や図と現況が異なる場合は現況を優先させていただきます。
| 間取り | 1LDK |
|---|---|
| 間取り詳細 | - |
| 物件種別 | マンション | ||
|---|---|---|---|
| 物件名 | ラヴェンナ文京富坂 | ||
| 物件所在地 | 東京都文京区春日1丁目 | ||
| 交通機関 |
|
||
| 周辺施設 |
|
||
| 特記事項 | 保証人不要、保証会社利用可 | ||
| 賃料 | 成約済 | 管理費/共益費 | 成約済 |
| 敷金 | 成約済 | 礼金 | 成約済 |
| フリーレント | - | 保険 | 2年 20000円 |
| 間取り | 1LDK | 面積 | 37.31㎡ |
| 採光向き | - | 契約形態 | 普通契約 2年 |
| 所在階 | 5階 | 入居可能日 | 相談 |
| 総戸数 | - | 竣工月 | 2004年4月 |
| 建築構造 | RC | 建物階建 | 地上7階 |
| 駐車場 | - | 駐車料 | - |
| 火災保険 | 要 | 鍵交換代 | 成約済 |
| 保証会社 | 要加入 / その他 | ||
| 諸経費 | 成約済 | ||
| 設備 | ガス(都市ガス)、インターホン(TVモニター付き)、防犯カメラ、宅配ボックス、下駄箱、コンロ設置済、コンロ口数(3)、コンロ種類(都市ガス)、システムキッチン | ||
| 備考 | 外国籍相談可、中国語対応可、詳細は株式会社ペガサスへ【TEL03-5645-5358】お問い合わせください。 | ||
| 所在地 | 〒103-0007 東京都中央区日本橋浜町2-55-1日本橋浜町公園グランドハイツ1F | ||
|---|---|---|---|
| 営業時間 | 9:30~18:30 | 定休日 | 日曜、水曜、祝日 |
2023/07/15
2023/07/04
2023/07/03
2023/07/03
2023/07/03