株式会社ペガサス

  • お気に入り
  • プライバシーポリシー
  • サイトマップ
株式会社ペガサス

営業時間 / 9:30~18:30 定休日 / 日曜、水曜、祝日

フェニックス日本橋浜町弐番館 11階

  • 駅近

お問い合わせ番号: PGS-A05-CN-2512

部屋紹介

★【仲介手数料半額】対象物件★駅徒歩5分以内、エレベーター、階建=所在階、防犯カメラ、オートロック、24Hゴミ出し可、宅配ボックス、角部屋、フローリング、バストイレ別、人感センサー、照明機器、追い焚き、浴室乾燥機、オートバス、温水洗浄便座、浄水器、詳細は株式会社ペガサスへ【TEL03-5645-5358】お問い合わせください★ご来店、現地待ち合わせ、オンライン内見ご選択可能♪ネットに掲載されている他社様のお部屋もまとめてご紹介可能です!

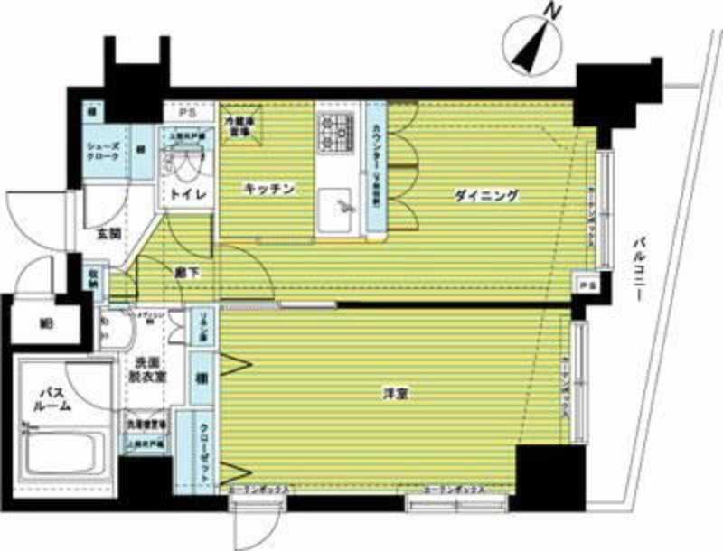
間取り 間取り詳細 面積 賃料 管理費/共益費 敷金(保証金) 礼金 採光向き
1LDK 洋室 8畳
LDK 9.2畳
42.14㎡ 成約済 成約済 成約済 成約済 北東

物件写真

物件情報は代表的なお部屋を掲載しております。
建物内の別の間取りでも空室がある場合がございます。
ご指名物件の空室待ちなども受付けておりますので、お電話かメールにてスタッフまでお申付下さい。
※写真や図と現況が異なる場合は現況を優先させていただきます。

部屋紹介

間取り 1LDK
間取り詳細 洋室 8畳 、 LDK 9.2畳

物件概要・設備

物件種別 マンション
物件名 フェニックス日本橋浜町弐番館
物件所在地 東京都中央区日本橋浜町1丁目
交通機関
  • 都営新宿線「浜町駅」より徒歩2分
  • 東京メトロ日比谷線「人形町駅」より徒歩6分
  • 東京メトロ半蔵門線「水天宮前駅」より徒歩10分
周辺施設
  • スーパー: 浜町プロデュース(八百屋) 距離159m
  • ドラッグストア: どらっぐぱぱす日本橋浜町店 距離105m
  • コンビニ: セブンイレブン日本橋久松町店 距離227m
  • スーパー: オーケー 日本橋久松町店 距離360m
特記事項 二人入居可、分譲タイプ、保証会社利用可
賃料 成約済 管理費/共益費 成約済
敷金 成約済 礼金 成約済
フリーレント - 保険 -
間取り 1LDK 面積 42.14㎡
採光向き 北東 契約形態 普通契約 2年
所在階 11階 入居可能日 即日
総戸数 - 竣工月 2003年9月
建築構造 RC 建物階建 地上11階 
駐車場 - 駐車料 -
火災保険 - 鍵交換代 成約済
保証会社 要加入 /  その他
諸経費 成約済
設備 ガス(都市ガス)、インターホン(TVモニター付き)、防犯カメラ、人感センサー、オートロック、宅配ボックス、専用ゴミ置き場(24Hゴミ出し可)、駐輪場、バイク置き場、2面採光、角部屋、フローリング、照明器具、ベランダ・バルコニー、収納スペース、クローゼット、クローゼット数(1)、下駄箱、バス・トイレ別(別室)、シャワー、追い焚き、浴室乾燥機、オートバス、給湯、温水洗浄便座、洗面台、洗面所独立、洗濯機置き場(室内)、コンロ設置済、コンロ口数(3)、コンロ種類(都市ガス)、グリル、浄水器、システムキッチン、冷房のみ、エアコン、エアコン台数(1)、24H換気システム、CATV
備考 -

近隣マップ

フェニックス日本橋浜町弐番館へのお問い合わせ

株式会社ペガサス

03-5645-5358

お問い合せ番号: PGS-A05-CN-2512

所在地 〒103-0007 東京都中央区日本橋浜町2-55-1日本橋浜町公園グランドハイツ1F
営業時間 9:30~18:30 定休日 日曜、水曜、祝日