株式会社ペガサス

  • お気に入り
  • プライバシーポリシー
  • サイトマップ
株式会社ペガサス

営業時間 / 9:30~18:30 定休日 / 日曜、水曜、祝日

エマーレ日本橋富沢町 4階

  • 礼金0
  • 駅近

お問い合わせ番号: PGS-A1-CN-2601

部屋紹介

★【仲介手数料半額】対象物件★駅徒歩5分以内、エレベーター、オートロック、角部屋、フローリング、バストイレ別、ディンプルキー、温水洗浄便座、詳細は株式会社ペガサスへ【TEL03-5645-5358】お問い合わせください。

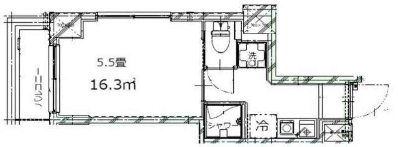
間取り 間取り詳細 面積 賃料 管理費/共益費 敷金(保証金) 礼金 採光向き
1K 洋室 5.5畳 16.3㎡

76,000

8,000円 1ヶ月 無料 南西

物件写真

物件情報は代表的なお部屋を掲載しております。
建物内の別の間取りでも空室がある場合がございます。
ご指名物件の空室待ちなども受付けておりますので、お電話かメールにてスタッフまでお申付下さい。
※写真や図と現況が異なる場合は現況を優先させていただきます。

部屋紹介

間取り 1K
間取り詳細 洋室 5.5畳

物件概要・設備
情報登録日:2026年01月19日 情報更新日:2026年01月19日 次回更新予定日:2026年02月02日

物件種別 マンション
物件名 エマーレ日本橋富沢町
物件所在地 東京都中央区日本橋富沢町
交通機関
  • 都営新宿線「馬喰横山駅」より徒歩3分
  • 都営浅草線「東日本橋駅」より徒歩4分
  • 都営浅草線「人形町駅」より徒歩5分
周辺施設
  • スーパー: オーケー 日本橋久松町店 距離104m
  • コンビニ: セブンイレブン日本橋久松町店 距離205m
  • ドラッグストア: どらっぐぱぱす日本橋浜町店 距離323m
  • ホームセンター: ダイソー人形町駅店 距離495m
  • 公園: 浜町公園 距離703m
特記事項 保証人不要、保証会社利用可
賃料 76,000円 管理費/共益費 8,000円
敷金 1ヶ月 礼金 無料
フリーレント - 保険 2年 20000円
間取り 1K 面積 16.3㎡
採光向き 南西 契約形態 普通契約 2年
所在階 4階 入居可能日 2026/3/上
総戸数 13戸 竣工月 2019年1月
建築構造 RC 建物階建 地上6階 
駐車場 駐車料 -
火災保険 鍵交換代 16,500円
保証会社 要加入 /  その他
50%、年間更新料1万円
諸経費 -
設備 ガス(都市ガス)、インターホン(TVモニター付き)、ディンプルキー、オートロック、角部屋、フローリング、全居室フローリング、ベランダ・バルコニー、バス・トイレ別(別室)、シャワー、給湯、温水洗浄便座、洗濯機置き場(室内)、コンロ種類(IH)、冷房のみ、暖房のみ、エアコン、エアコン台数(全室)、24H換気システム、光ファイバー、インターネット使用料無料
備考 -

近隣マップ

エマーレ日本橋富沢町へのお問い合わせ

株式会社ペガサス

03-5645-5358

お問い合せ番号: PGS-A1-CN-2601

所在地 〒103-0007 東京都中央区日本橋浜町2-55-1日本橋浜町公園グランドハイツ1F
営業時間 9:30~18:30 定休日 日曜、水曜、祝日

お問い合せフォーム

必須お名前
任意フリガナ
必須メールアドレス
任意電話番号
連絡ご希望の時間帯
任意FAX番号
任意郵送 住所
必須お問い合せ内容

個人情報のお取り扱いについて

お問い合わせフォームからお客様が入力された個人情報は、資料送付・電子メール送信・電話連絡などの目的でのみ使用いたします。 また、本サービスを円滑に運用するために、お客様の個人情報をサービスご利用の控えとして一定期間保管いたします。 メールアドレス・電話/FAX番号など、ご記入の内容が不明確でご連絡差し上げる事ができない場合、当社が本サービスを円滑に運用するために必要な範囲において直接確認のご連絡をさせていただく場合がありますのであらかじめご了承ください。 個人情報の取扱い方針については、こちらをご覧ください。